- メーカー
- 株式会社創建
点検口 リーフ目地 303 タイプ3 WA ホワイトアルマイト2 300角 71078 天井 アルミ 目地 4方向開閉 創建
配送について
配送不可曜日の確認
日曜、祝日配送不可
ご購入前の確認事項
■ご注文条件
こちらは事業者のお客様向けの商品です。宛先には屋号または会社名の記載が必要です。
本商品は個人宅への配送には対応していません。
■配送・搬入条件本商品は車上渡しのため、荷受人による荷受け対応および荷下ろし人員・機器の手配が必要です。
配送車両の現場待機には対応していないため、到着時に速やかな受取対応が必要です。
在庫あり
在庫あり
製品仕様
| カラー | ホワイトアルマイト2 |
|---|---|
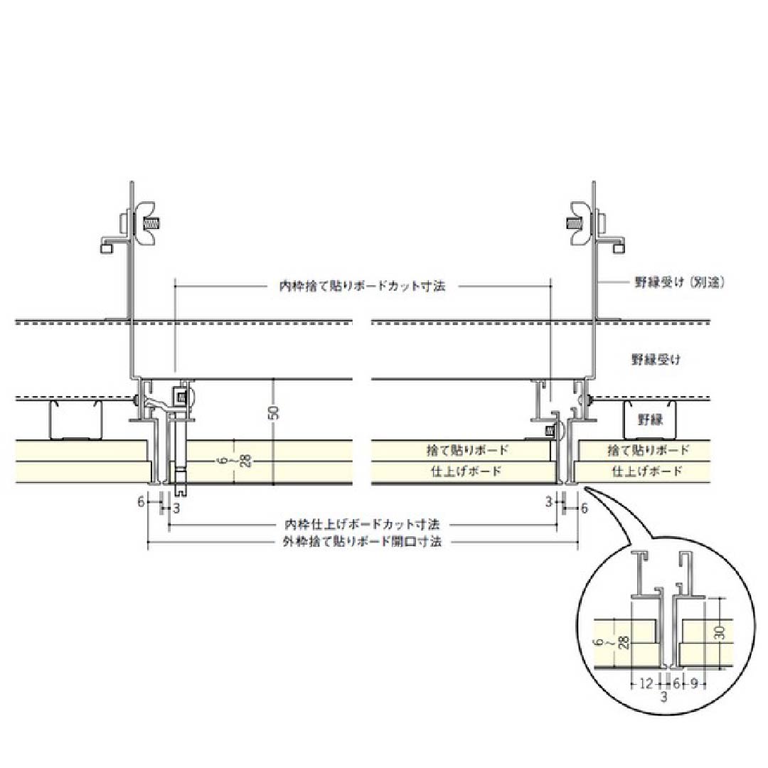
| 寸法 | 外枠仕上げボード開口寸法:303×303 外枠捨て貼りボード開口寸法:317×317 内枠仕上げボードカット寸法:293×293 内枠捨て貼りボードカット寸法:269×269 |
| 材質 | アルミ |
0
0
0
×
配送について
配送不可曜日の確認
日曜、祝日配送不可


























